信息化背景下大型圖書館設計模式的創新
——遼寧省圖書館新館的設計探索
近年來,隨著國家對公共文化、教育設施投入的不斷加大,以及公眾對文化信息需求的增長和社會的發展,促成了圖書館提供服務方式的更新和拓展,也使得圖書館的建筑設計模式必須隨社會的發展不斷更新與進步。本文結合遼寧省圖書館新館的設計,對項目設計中如何整合數字技術與建筑功能、優化建筑空間布局、體現傳統文化內涵等方面進行了論述,以期對未來圖書館的建設有所參考。
1、 遵從新城總體規劃的建筑格局
遼寧省圖書館新館項目選址于沈陽市渾南新城的核心地帶,與遼寧省檔案館、遼寧省博物館、遼寧省科技館同步規劃設計與實施,目標形成文化建筑集群效應(圖1)。
圖1 渾南新城核心區規劃
建筑布局著眼于整個新城的總體規劃和區位特點,基地東側緊鄰新城主干道智慧二街和面積達4萬平米的市民廣場,地塊環境空間十分開敞,適宜建造全方位式的文化建筑景觀。
建筑總體采用近似方形的布局和整合的體量關系,形體單純明確,成為區域內可以多角度、全方位觀賞的文化建筑。這種手法既對規劃意圖做出回應,又適合文化建筑的定位(圖2)。
圖2 總平面圖
由于基地東側為未來地鐵出入口,并且東側市民廣場將建設超大型地下停車場,因此基地人行主入口和建筑主入口面向東側的市民廣場布置,車型入口開向西側的智慧一街?;貎热塑嚪至?,交通流線清晰合理。人流路徑結合室外廣場與庭院布置,為讀者營造了優美、靜謐、閑適的學習與交流環境。

圖3 首層平面
2、 適應時代發展的功能創新
本項目總建筑面積約10萬平方米,建筑高度22米,是集圖書借、閱、研究、文化休閑等為一體的大型文化設施,作為沈陽市最重要的文化設施之一,結合當前圖書館發展,我們在建筑功能設計及布局上有所探索:
2.1 全開放布局和超市化的模式
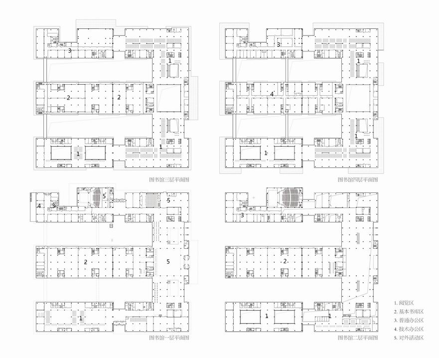
本工程為框架結構,地上四層、地下一層,按功能大體分為圖書采編辦公區、藏書區、圖書借閱區、對外服務區。區域分劃明確且聯系緊密。
在設計之初,通過對大量圖書館的調研及相關資料查閱,以及與業主方的反復探討,我們在方案設計綜合多種手段,突破傳統圖書館設計的固有模式,采取以下對策:
2.1.1 取消傳統的目錄檢索廳,代之以“一站式管理”的多功能入口大廳(圖),該處空間既是功能空間的中樞,又是圖書館對外管理及運行的“大腦”,讀者通過數字化信息管理系統就可在入口大廳總服務臺完成整個館內的圖書借還(并可在館內任何一臺信息化服務節點完成信息檢索和網絡查閱),實現一站式的超市化管理和外借、內閱、參考等“一條龍”高效服務。
2.1.2閱覽室采用大空間布局,以適應不斷變化的功能需求,各層閱覽室以大小不等的中庭貫通,閱覽桌椅圍繞中庭布置,通過書架和閱覽桌不同的尺度和形式變化,在大空間內部分割出既相同又相對獨立的空間領域。
圖4 剖面
2.1.3 縮減書庫空間,放大開架閱覽空間,統一樓面荷載,充分考慮未來發展空間。
上述設計改變了傳統圖書館的運行模式,適應當今社會對圖書館的需求,適應未來發展。
2.2 集讀書、交流、休閑為一體的文化場所
當今社會生活方式的變化促使圖書館也要做出相應改變。圖書館不應僅僅是伏案苦讀的地方,人們更希望在讀書學習的同時放松心情、交流會友。此外,圖書館還應提供形式多樣的文化消費,比如逛書店、參觀展覽、參加各種講座、培訓等。在圖書館輕松閑適的氛圍中享受學習與交流的快樂。
顯然,圖書館在當前社會生活中應承擔起不斷強化的文化服務功能、教育功能、休閑娛樂功能。傳統意義省的圖書館正逐步演化成綜合的信息文化中心。
為順應上述變化,我們采取了相應的設計對策:
2.2.1 圍繞圖書館的“閱覽”核心功能和空間,穿插布置相關的外延功能,例如每個閱覽區均設置休閑交流空間。
2.2.2強化多媒體閱覽功能。常規圖書館的電子閱覽室一般僅提供類似“網吧”的上網服務,鑒于網絡的普及和WIFI的應用,本項目的多媒體電子閱覽區強化電子閱讀的體驗,注重營造良好的視聽環境,采用現代化設備設施,為讀者提供互不干擾的“視聽”享受,此外該區域還設計小型錄音棚,為讀者提供個人CD錄制等服務。
2.2.3一層設計自助借還書空間。隨著生活方式的變化,大量讀者只有在工作之余才有時間來到圖書館,為方便讀者借還書,本項目特設可獨立使用的24小時自助借還書空間,借助類似ATM的自動借還書機,讀者可隨時享受便捷服務。
2.2.4 在圖書館對外服務區設計展廳、報告廳、多功能廳、咖啡吧、書店等功能空間,拓展圖書館服務內容。
2.3 利用獨有的藏書資源,挖掘圖書館特色。遼寧省圖書館擁有大量珍藏的經典古籍,作為鎮館之寶存放,普通讀者一般無法借閱,新館的設計之初即明確要充分利用館藏資源,讓珍藏的古籍與普通讀者“見面”,讓讀者領略我國博大精深的傳統文化,讓其起到文化傳承的作用。為此,本工程特設古籍閱覽專區與古籍博物館,讀者可在此借閱古籍,并設計專家研究室,為古籍方面專家提供研究場所。
3、 以讀者為中心的細節設計
本工程明確“以讀者為中心”的設計準則。借助智能化管理系統,讀者在館中的閱讀和休閑極為便利;交通空間位置適宜,并且自動扶梯、電梯的布置提升了豎向交通的舒適性;閱覽桌均設計在外墻及中庭周邊,采光良好、視野開敞,為讀者提供舒適的學習和休息環境。
室外庭院空間的水體、綠化等為讀者提供了安靜、愜意的休閑場所。兒童閱覽區設于一層南向,擁有獨立的室外活動場地;室內設計采用而同尺度的家具和設施,色彩鮮亮明快,充分考慮少兒心理和活動特點。
殘障閱覽室的設計處處體現對視聽障障礙、肢體障礙等讀者的關懷,擁有獨立的無障礙出入口和衛生間。
4、 具有傳統意味的建筑造型及空間
設計中借鑒傳統并努力創新,注重通過現代手法與材料展現傳統建筑的意味。
圖6 庭院
4.1建筑空間上,中國傳統建筑崇尚順應自然,空間界面與形態隨機多變,并且注重建筑內外空間的相互融合、滲透與虛實相生。本項目的設計注重以簡潔的形體構建豐富的空間體驗,人們的活動與內外空間環境建立自然聯系。以典型的庭院空間為基礎,采取建筑體塊的錯動、室內外空間的穿插、虛實界面的對比等方式,兼具傳統院落的內斂、靜謐,同時豐富空間層次、拓展景深視野。
首先,將“E”字形平面的外伸部分以空中廊道聯系,滿足功能需要的同時,將大體量建筑分為若干庭院,使內向的閉塞的內向空間變為多向的立體空間。
7立面局部
其次,以傳統園林“借景”手法,將入口大廳兩側的空間放開,使庭院景觀滲透到室內,弱化室內外界面,內外景色由此融合共生。
8入口大廳
又如,水院與綠化內庭在透空的廊道下交錯延伸,景觀層次豐富。讀者無論身處舍內或室外,都能領略到精巧靜謐的庭院景致。
4.2建筑造型上,同樣注重傳統建筑的現代化演繹。以層層錯落出挑的大尺度水平挑檐表達傳統建筑的大屋頂構件,立面幕墻上紅色的豎向格構既是遮陽構造,又表達出傳統建筑的窗格意向,同時其類似“書架”排布方式與圖書館的內涵完美契合。
9兒童閱覽區
在外墻選材上,深灰色花崗巖板、淺灰色鋁蜂窩板、淺藍色玻璃幕、紅色鋁材相間,水平線條流動、舒展,細部設計及材料對比細致入微。
4.3室內裝飾精細化控制。室內外設計均以1.5m網格為模數,天棚、地面、墻面等均嚴格遵守模數網格,保證建筑高完成度。為保證室內外風格統一、協調,建筑師對室內裝飾設計的重點部分全程把控,,例如公共空間裝飾、閱覽室基本色調控制與家具配置等,確保明快、優雅、靜謐的基調貫穿始終。以“書架”為母題的大廳背景墻,現代感十足,卻又感受到傳統韻味,選材、用色樸素、溫馨,起到畫龍點睛的點題作用。
遼寧省圖書館與2011年動工建設,2013年在遼寧省召開的第十二屆全國運動會將其作為全運會新聞中心的辦公場所,體現了該項目內部功能的靈活性,得到各界人士的一致好評。
希望本工程的落成能夠為我們文化事業的發展增添重要的一筆。