萬科集團創展中心

點擊數: 【字體: 收藏 打印文章
 
VANKE EXHIBITION CENTER
萬科集團創展中心
撰文 鐘華穎 南京大學建筑規劃設計研究院數字建筑工作室
業主:萬科集團萬創設計管理部&建筑研究中心
項目地點:東莞市松山湖萬科住宅產業化研究基地
建筑設計單位:南京大學建筑規劃設計研究院有限公司
建筑設計:鐘華穎、李輝
結構設計單位:ARUP奧雅納工程咨詢(上海)有限公司
結構設計:郭家耀(Michael Kwok)、劉鋼、Martin Simpson、陳智力(Nick Chen)、孫鵬
建筑面積:6 860m2
設計時間:2012年
建設時間:2012~2013年
建筑攝影:姚力
總平面圖
 
自由曲面作為一種造型手段應用于建筑設計,由于非標準的構件加工造價高昂,往往被認為僅適用于一部分重要的標志性建筑。在造價有限、預算控制嚴格的一般性大型建筑設計中,如何合理地應用非標準曲面造型,萬科集團創展中心進行了一次嘗試。通過一系列合理的設計技術措施結合工業化加工手段,最終實現了這座低造價的非標準形態建筑。
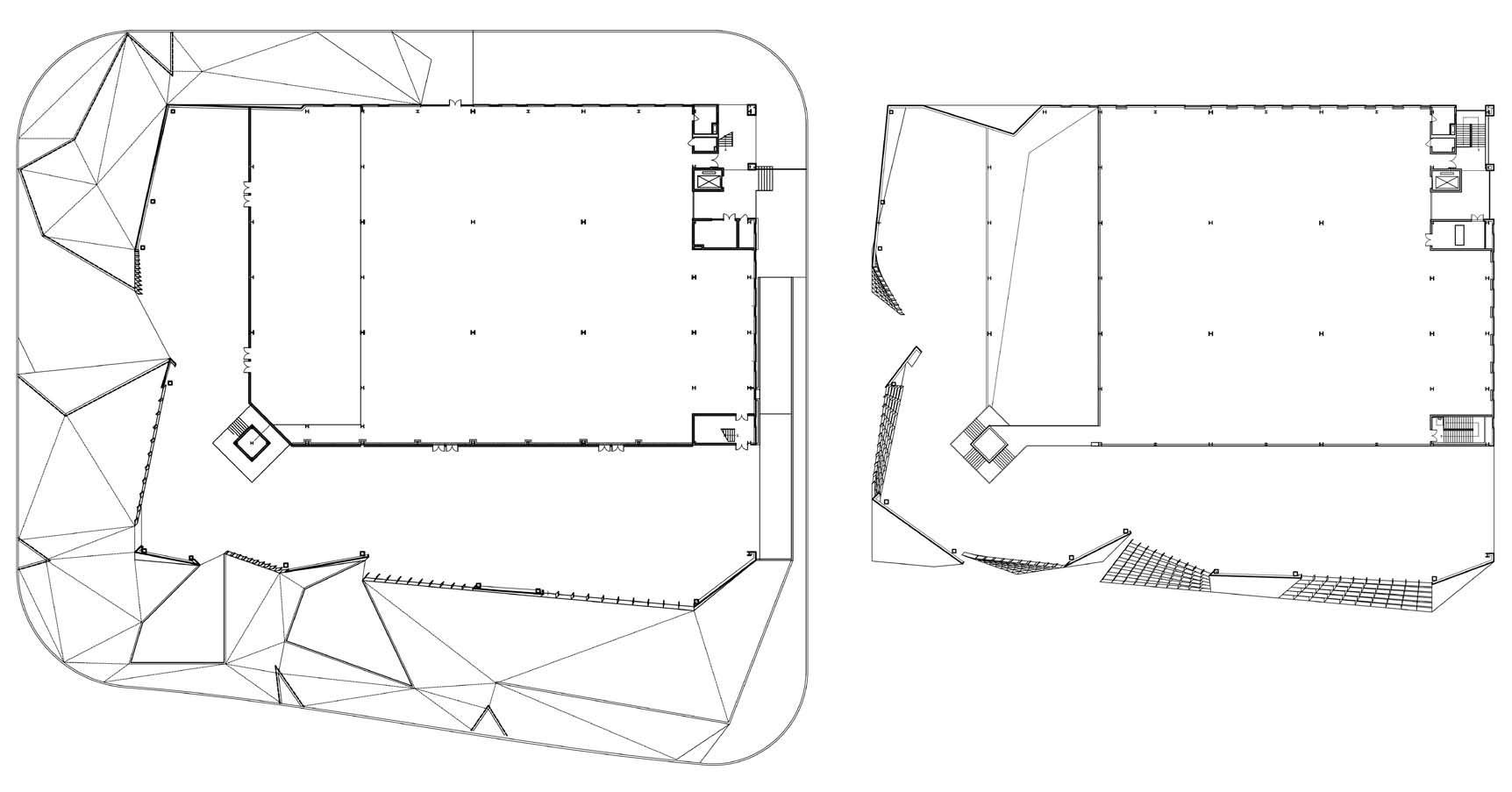
萬科創展中心位于東莞松山湖萬科集團住宅產業化研究基地內,是萬科集團住宅建筑設計、住宅精裝修研發與展示的基地。內部要求14m柱跨的通用空間。用地北部為已建成的研究廠房,南側為基地邊界的自然土坡。結合內部空間要求和外部環境,創展中心由14m柱跨的方盒子開始,將屋頂及東側、南側的墻體撕裂、扭轉,形成光線和空氣進入建筑的通道。扭轉的墻體虛實相間,分別轉化為封閉的曲面鋼幕墻和扭曲的鋼格柵。支撐斜柱隱藏在曲面幕墻內,鋼格柵在增強通風效果的同時,也作為遮陽構件起到遮陽作用。兩者虛實相間形成的豐富形體與南側自然地形相呼應。為了實現這一設計構思,從幾何形態、參數化設計技術、構造節點等方面提出了相應的措施。
適應加工條件的幾何選型
非標準構件的幾何形體如果在三維方向同時變化,需要進行三維數控加工,造價高昂。如果將非標準構件的形狀變化限定在二維平面內,其造價就會大幅降低。走訪本地加工廠發現,很多常規的直線形構件也采用數控加工,數控加工技術的普及為設計的實現提供了現實基礎。在加工費用上,以數控切割機為例,加工平面內的曲線形構件與加工直線形構件單位時間的加工費相同,不同之處在于材料的利用率。根據這一加工條件,創展中心將構件形狀變化限制在二維平面內,同時利用合理的幾何選型,將構件進一步簡化為直線形構件,提高了材料利用率,降低了總體造價。在多種自由曲面類型中,滿足這一要求的是由空間中不共面的兩條直線定義的規則曲面,而沿兩條邊等分線的連線均為直線。這一特性方便了后期加工,建造過程中的定位也比較方便。規則曲面的弱點在于形態變化不夠豐富,因此創展中心采用多組規則曲面的組合,構成豐富的形態變化。
 
參數化構件生成
根據規則曲面的幾何特性,編寫了曲面格柵和曲面幕墻的參數化生成程序,輸入密度、進深等控制參數,即可生成構件。同時將面積、厚度以及對應的用鋼量等指標存儲在數據庫當中,實時輸出反饋給相關專業以及業主,為比較不同設計方案的造價變化提供了快速準確的依據。以程序描述的形體生成為基礎,設計在不改變總體控制原則的前提下對比不同方案,研究構件細部尺寸,實現方便和高效。在設計周期很短的情況下,我們對比了十種以上不同可能性的方案,最終確定了曲面格柵和幕墻方案,并在很短的時間內完成方案模型的重建。
 
易于調節的構造節點
曲面鋼板幕墻是由多個小的平面單元拼接而成的,初期方案擔心安裝精度難以保證,將幕墻單元拼接設計為明縫。這一設計需要在鋼板背面增加防水層,構造復雜,造價難以承受。因此將幕墻拼縫改為焊接密封,焊縫允許的最大寬度有限,且幕墻單元數量較多,精度要求較高。幕墻節點設計進行了不同方案的試樣對比研究,最終采取在每一幕墻單元設可調節的定位鋼片進行初步定位,待整片幕墻對縫確認完畢后再進行焊接固定的方法。實際應用的效果簡便易行,安裝快速。
 
順應加工工藝的表面肌理
幕墻全尺寸試樣焊接完畢后,焊縫的處理成為一個難題。預想的處理方法是焊接完成后逐一打磨,由于焊縫的數量大,打磨費工費時。通過試樣發現,打磨用的砂輪會在焊縫周邊留下明顯的痕跡,表面噴涂后痕跡會更加明顯。如果保留焊縫,整體效果將十分粗糙。是否打磨焊縫成為一個兩難的選擇。正當設計陷入困境時,走訪加工單位發現,用于加工鋼板的折彎機可以精確地按照預定角度將鋼板折彎。因此,我們提出將三角形幕墻單元兩兩組合為四邊形單元,對角線用折彎機加工,這樣僅焊接四邊即可。這一方法大大減少了焊接量。折彎的壓痕形成精細的轉折線條,與周邊粗獷的焊縫形成對比。幕墻整體形成了對角線與四邊形兩個方向網格交織的特殊肌理,在不同光線下將產生微妙的光影變化。
建筑-結構一體化的參數化設計
曲面鋼格柵在總體用鋼量當中占很大比重,在主體結構難以壓縮的條件下,壓縮曲面格柵的用鋼量成為控制造價的關鍵。鋼格柵從建筑效果考慮希望盡可能薄,同時有大的進深。但如果太薄,其結構強度就難以滿足,而增大進深又會直接增加造價。如何決定最佳格柵參數,僅從建筑效果角度考慮難以決定。此時結構設計提出了一套參數化結構計算模型,將幾何尺寸變化對結構的關聯關系以多條曲線表達,曲線上每一點的對應參數均可滿足結構設計要求。在這一技術的輔助下,結合造價統計程序,建筑師迅速準確地選定了造價范圍內的最佳幾何尺寸參數。
 
BIM建筑信息模型
復雜形體的實現首先是設計信息的全面準確表達。利用BIM設計平臺的圖紙表現與信息綜合能力,可以準確高效地進行施工圖階段建筑、結構、幕墻各工種的配合以及項目實施過程中出現的設計問題反饋。同時我們也發現,BIM模型可以進行高效的信息輸出與整合,背后的控制思想與參數化方法有類似之處。如果信息輸入的接口更為開放,將形體生成過程中的設定參數與BIM模型的控制參數對接,實現建模軟件平臺與BIM平臺的整合,參數化設計的能力將更為強大。
 
結語
萬科集團創展中心的設計建造在幾何形態方面的探索僅僅是一個方面,如何在低造價前提下實現非標準曲面建筑的建造是設計的核心意圖。這一過程中相關設計技術的研發與應用則是意料之外的收獲。

一層平面圖
二層平面圖
南立面圖
西立面圖
規則曲面幾何特性
鋼格柵的參數化建模
方案對比研究
曲面鋼幕墻節點
幕墻肌理
結構-表皮三維模型(圖片來源:李輝提供)
BIM模型(圖片來源:李輝提供)
 
作者: 來源: 發布時間:2014年04月11日
相關信息
沒有相關內容
用戶信息中心
最新推薦
本月排行TOP50
  • 還沒有任何項目!